Seattle Fallout Shelter a Cold War relic under I-5
Jan 19, 2018, 6:44 AM | Updated: 8:14 am
The false alarm in Hawaii that sent locals and tourists into 40 minutes of nuclear panic earlier this week has some people on the West Coast looking ahead to prepare for an uncertain future.
Cascade Tunnel still going strong in 90th year
Others are looking back to the spookiest days of the Cold War, when Puget Sound was ringed with defensive missile bases, and authorities built a “community fallout shelter” in Seattle as part of the construction of Interstate 5.
Scott Williams is the manager of the Washington State Department of Transportation’s Cultural Resources Program. He oversees the state’s historically significant highways and bridges, and, yes, its one-of-a-kind fallout shelter.
“It’s a pretty minimal shelter, and it’s not actually a bomb shelter, it’s a fallout shelter,” Williams told KIRO Radio. “So it wasn’t designed to survive a direct nuclear strike on Seattle.”
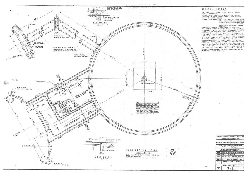
The shelter, with its 15-inch thick concrete walls, dates to 1963 and is kitty-corner from the old John Marshall School. During the construction of I-5, the shelter was built into the area beneath the southbound lanes of the freeway where it crosses Weedin Place, just east of Green Lake and just north of the University District, around 68th Street in North Seattle.
An odd-looking concrete box that’s visible from I-5 is the shelter’s air vent and is the only indication to freeway drivers that this isn’t a typical overpass. Below and just west of the underpass along Weedin Place, a landscaped concrete pathway leads from the sidewalk to a distinctive high and slightly curved concrete wall, with a metal door and grate. A concrete culvert off to the left of this main entrance is the escape hatch from the shelter’s emergency exit tunnel.
The shelter interior isn’t open to the public, but the entrance courtyard and the landscaped area around the shelter is easily accessible to casual visitors and Cold War history buffs. Street parking is often available right in front of the shelter entrance, convenient now for the curious, and convenient 50 years ago for those seeking to survive a man-made doomsday.
“It was designed really for people to hole up in for two weeks after a nuclear attack until the fallout had decayed enough to make it theoretically safe to come back outside,” Williams said. “So it’s a real simple design. It’s basically a big circular room with two bathrooms and a very small storage area where canned food could be handed out, and a utility room that had a generator and a water pump and the air filters.”
Williams says that the I-5 fallout shelter was designed in 1959 by a local engineering firm to house between 200 and 300 people from the community, as well as those traveling along the freeway who were caught out far from home when the bad news came. The Seattle “Community Fallout Shelter” was a prototype for what would’ve likely been dozens of similar shelters all along the freeway that was then being built through Washington, and for hundreds of similar shelters along interstate highways all over the country.
But it wasn’t to be.
“The only one that was ever built is the one here in Washington state,” Williams said. “By the time it got built, I think people realized it wasn’t really a great idea. Nuclear bombs were getting so big [and] with Soviet submarines, the attacks were going to come really quick,” and shelters wouldn’t be much use.
Williams also says that in order for the Seattle fallout shelter to get built in the first place, skeptical highway authorities had to be convinced that the facility could also serve some transportation-related purpose in addition to just sitting there, waiting to be used in the event of nuclear war.
“It was a Washington State Patrol Department of Licensing Office for years” for issuing driver’s licenses, Williams said, from the day it was dedicated by dignitaries (and demonstrated against by anti-war activists) in March 1963, until sometime in the 1970s. “That was how they sold it, as ‘Oh, we’ll do this dual use.’”
Williams says that with this dual use, the fallout shelter was never stocked with food or other survival supplies and that it was never used in any drills or emergency preparedness exercises. From a maintenance standpoint, WSDOT treats the structure as part of the bridge that it’s built into, and Williams says it doesn’t receive any extra care and attention other than graffiti removal from its ample streetside concrete façade.
And nowadays, the interior of the 60-foot diameter fallout shelter is used as a storage area for WSDOT’s surplus furniture. Even when it was brand-new, Williams says, it wasn’t a place designed for relaxation or luxury.
“There’s several things in the design and in the manuals that exist that note that the fallout shelter was designed for survivability, not comfort,” Williams said, with only a single “decontamination shower” and no regular bathing facilities.
“There was a men’s room and a women’s room, the women’s room had two toilets, [and] the men’s room had one toilet and one urinal,” Williams said. “There was no cooking facilities.”
No cooking facilities?
“Food was all going to be canned and cold,” Williams said. “Although there’s a manual in the shelter that suggests you could warm your canned food by placing it in your armpit and holding it there for 10 or 15 minutes.”
